Утилиты оформления
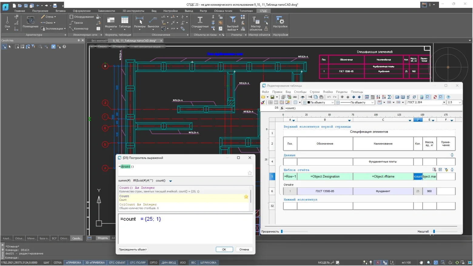
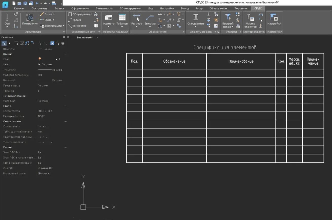
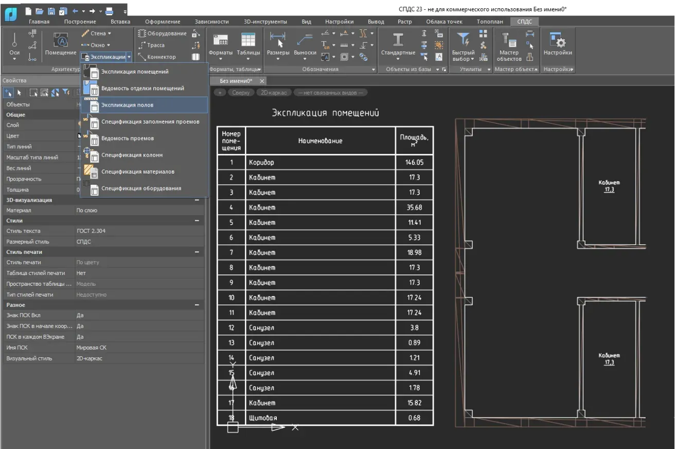
В модуле «СПДС» собраны самые полезные инструменты для автоматизации рутинных операций. Вы сможете объединить отдельные отрезки и тексты в таблицу nanoCAD, автоматически пронумеровать любой объект чертежа, увеличить/уменьшить выделенную графику с помощью команды Копировать фрагмент или создать собственный объект с вычисляемыми свойствами
